Реализация объекта недвижимости приостановлена

Информация о квартире

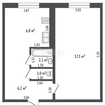
29.0 м2
Площадь
5.0 м2
Кухня
1
Комната
3
Этаж
5
Этажность

Дополнительная информация

Тип дома
кирпичный
Развернуть

1-к кв. Мордовия, Рузаевка ул. Ленина, 32 (29.7 м)

Предлагаем вашему вниманию уютную однокомнатную квартиру площадью 29.7 кв. м, расположенную на 3-м этаже кирпичного дома 1970 года постройки. Дом состоит из 5 этажей и оборудован наземной парковкой для вашего удобства.Квартира в хорошем состоянии после косметического ремонта. В комнате окна выходят во двор, что обеспечивает тишину и спокойствие. Удобная планировка включает в себя совмещенный санузел и компактную кухню площадью 5.9 кв. м. Также предусмотрен балкон, где можно отдохнуть и насладиться свежим воздухом.Дом находится в районе с развитой инфраструктурой. В шаговой доступности расположены школы, детские сады, клиники и магазины, что делает проживание здесь комфортным и удобным для семей с детьми и без. Хорошая транспортная развязка позволяет быстро добраться до ближайших остановок общественного транспорта и других районов города.Квартира продается без обременений, возможна покупка в ипотеку. Все документы готовы к сделке, что позволит вам быстро и без проблем стать собственником этого замечательного жилья.Приглашаем вас на просмотр Звоните и записывайтесь на удобное время. Мы готовы ответить на все ваши вопросы и помочь с выбором вашего будущего дома.

Читать полностью

    Реализация объекта недвижимости приостановлена

    Не нашли подходящего объявления?

    Оставьте заявку, и наши риэлторы подберут квартиру в районе Рузаевки

    (0)