Реализация объекта недвижимости приостановлена

Информация об комнате

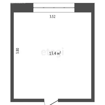
18.1 м2
Комната
5
Этаж
6
Этажность

Состояние и оснащение

Лифт
есть

Дополнительная информация

Количество комнат
2
Количество продаваемых комнат
1
Лифт
Развернуть

Комната Мордовия, Саранск ул. Пушкина, 10 (18.1 м)

Продается замечательная комната площадью 18 кв.м. в уютном спальном районе города Светотехстрой Эта светлая и комфортная комната расположена на 5 этаже 6-этажного дома и идеально подойдет как для проживания, так и для инвестиций. Комната сухая, теплая и не угловая — здесь всегда будет приятно находиться.Внутри имеется небольшой коридор, где вы сможете установить мини-кухню для удобства приготовления пищи, а также есть возможность установить душевую кабину, что станет настоящим преимуществом для вашего комфорта. Санузел на 4 комнаты.Дом находится всего в 5-7 минутах ходьбы от остановки общественного транспорта, что обеспечит вам легкий доступ к другим районам города. В шаговой доступности расположены продуктовые магазины и Физкультурно-оздоровительный комплекс, что позволит вам всегда быть в форме и не тратить время на долгие поездки за покупками. Кроме того, рядом находятся школа 25 и детский сад 79.Не упустите шанс стать обладателем этой уютной комнаты Форма оплаты любая, что делает сделку максимально удобной для вас. Звоните прямо сейчас и записывайтесь на просмотр Код пользователя: 101624Номер в базе: 3843271

Читать полностью

    Реализация объекта недвижимости приостановлена

    Не нашли подходящего объявления?

    Оставьте заявку, и наши риэлторы подберут комнату в районе Саранска

    (0)