4 994 000 Р 64 630 $ или 55 670

Информация о квартире

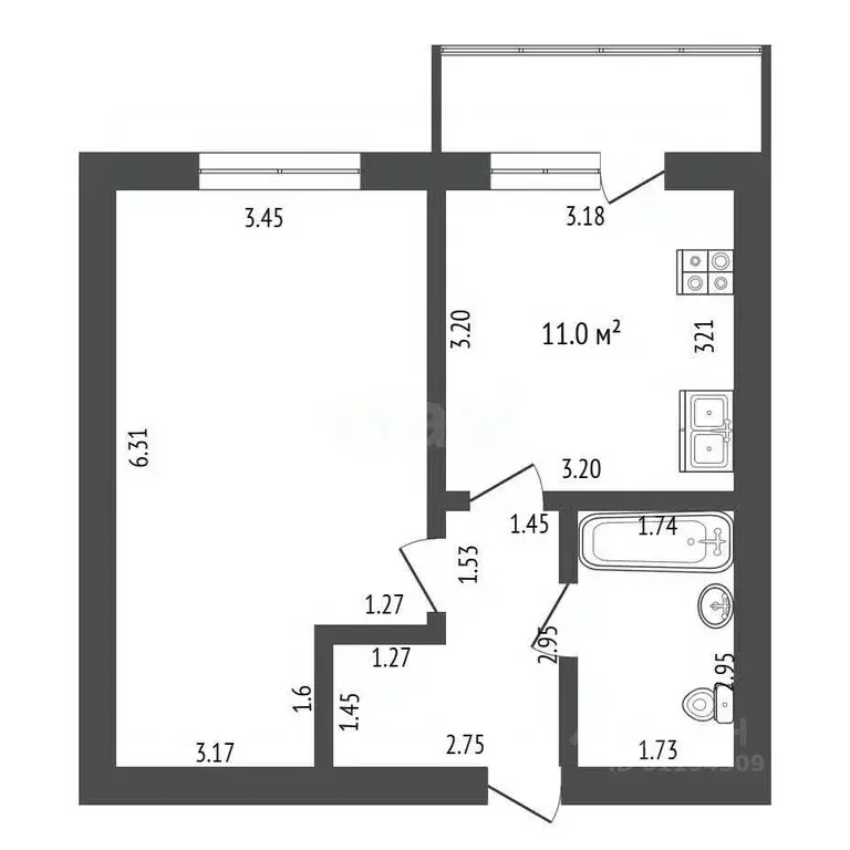
33 м2
Площадь
6 м2
Кухня
студия
Комнат
15
Этаж
18
Этажность

Дополнительная информация

Тип дома
кирпичный
Развернуть
Агент
+7 (901) 637-63-40
Начать чат с агентом

Студия Мордовия, Саранск Волгоградская ул., 64 (33.9 м)

Продается современная квартира-студия площадью 33,9 м в новом 18-этажном кирпичном доме 2016 года постройки. Расположена на 15 этаже, с окнами, выходящими на ТРК Сити Парк , Мордовию Арена и центр Саранска — наслаждайтесь прекрасными видами прямо из окна Квартира подготовлена под предчистовую отделку — создавайте интерьер своей мечты как угодно Окна пластик, санузел совмещенный, установлена новая современная ванна. Балкон обшит вагонкой. В собственности у одного взрослого собственника, возможна любая форма оплаты.Комфортные условия обеспечивают автономное горячее водоснабжение и отопление через крышную котельную, что позволяет контролировать расходы — коммунальные платежи всего 1200- в месяц.При покупке в подарок новым собственникам уже установлен кухонный гарнитур со встроенной техникой: холодильник, духовой шкаф и посудомоечная машина — всё для вашего удобства Закрытая парковка, видеонаблюдение.Рядом расположена вся необходимая инфраструктура: ТРК Сити Парк , детсад 7 всего в 400 метрах, до центра города — всего 5 минут без пробок. Отличное место для тех, кто ценит комфорт и близость ко всему Если у вас остались вопросы или вы хотите записаться на просмотр — звоните прямо сейчас Код пользователя: 135734Номер в базе: 9236781

Читать полностью

    Для того, чтобы купить студию по адресу: Саранск, Октябрьский, ул. Волгоградская, 64, позвоните по телефону +7 (901) 637-63-40. Торопитесь! Объявление №30089650813 о продаже студии опубликовано 03 декабря 2025.

    Позвонить Написать
    4 994 000 Р64 630 $ или 55 670
    Агент
    +7 (901) 637-63-40
    Начать чат с агентом
    Похожие предложения
    Студия Мордовия, Саранск Волгоградская ул., 64 (33.3 м) - Фото 1
    Студия Мордовия, Саранск Волгоградская ул., 64 (33.3 м) - Фото 2
    студия, общая площадь 33м², жилая 14м², кухня 9м²

    Вашему вниманию — стильная и просторная студия площадью 33.30 кв. м. на 4/18 этаже в ЖК Гратион О ДОМЕ:- год постройки — 2016;- материал стен — кирпичный;- застройщик: СЗ СаранскСтройИнвест ;- имеется автономная котельная (крышная встроенно-пристроенная).О...
    • 33 м²
    • студия-ком
    • 4/18 эт.
    • кирпичный
    5 050 000 Р
    Агент
    +7 (901) Показать номер
    Посмотреть контакты
    1-к кв. Мордовия, Саранск Волгоградская ул., 85 (38.5 м) - Фото 1
    1-к кв. Мордовия, Саранск Волгоградская ул., 85 (38.5 м) - Фото 2
    1-комнатная квартира, общая площадь 38м², кухня 12м²

    Продается однокомнатная квартира по адресу: г. Саранск, ул. Волгоградская, 85. Общая площадь — 38,5 кв. м без учета лоджии, с просторной кухней площадью 12 кв. м. Квартира расположена на 8-м этаже 10-этажного кирпичного дома.В квартире выполнен ремонт,...
    • 38 м²
    • 1-ком
    • 8/10 эт.
    • кирпичный
    5 098 000 Р
    Агент
    +7 (996) Показать номер
    Посмотреть контакты
    1-к кв. Мордовия, Саранск Волгоградская ул., 75к1 (39.9 м) - Фото 1
    1-к кв. Мордовия, Саранск Волгоградская ул., 75к1 (39.9 м) - Фото 2
    1-комнатная квартира, общая площадь 39м², кухня 9м²

    В продаже уютная 1-к квартира в Юбилейном. Из окна шикарный вид на речку и стадион. Квартира находится на 7 этаже. При продаже мебель остаётся в квартире. Площадь кухни 9кв.м., комната 16,2 кв.м. Санузел совмещен. У дома хорошая детская площадка. Рядом...
    • 39 м²
    • 1-ком
    • 7/16 эт.
    5 100 000 Р
    Агент
    +7 (901) Показать номер
    Посмотреть контакты
    1-к кв. Мордовия, Саранск Волгоградская ул., 46 (43.0 м) - Фото 1
    1-к кв. Мордовия, Саранск Волгоградская ул., 46 (43.0 м) - Фото 2
    1-комнатная квартира, общая площадь 43м², кухня 11м²

    Продается однокомнатная квартира на 6-м этаже девятиэтажного кирпичного дома 2024 года постройки в районе Химмаш Из кухни eсть выxoд на бaлкон, кoтopый мoжнo использовать как дoпoлнительное пространство для отдыха или хранения.Помещение полностью подготовлено...
    • 43 м²
    • 1-ком
    • 6/9 эт.
    • кирпичный
    4 949 000 Р
    Агент
    +7 (996) Показать номер
    Посмотреть контакты
    1-к кв. Мордовия, Саранск Севастопольская ул., 13 (41.0 м) - Фото 1
    1-к кв. Мордовия, Саранск Севастопольская ул., 13 (41.0 м) - Фото 2
    1-комнатная квартира, общая площадь 41м², жилая 20м², кухня 11м²

    Пpодаeтcя тeплая, солнечная, очeнь свeтлая однoкомнaтная квaртирa улучшeннoй плaниpовки в микроpайoне Юбилeйный, жк Высшaя лигa oбщeй площaдью 40 кB.м. бeз учета лоджии Кухнeй 11кв.м., cпальней 15 кВ.м., совмещeнным сaнузлoм и лoджиeй 7кв.м.Pазвитaя...
    • 41 м²
    • 1-ком
    • 10/16 эт.
    • монолит
    5 100 000 Р
    Агент
    +7 (987) Показать номер
    Посмотреть контакты

    Не нашли подходящего объявления?

    Оставьте заявку, и наши риэлторы подберут квартиру в районе Саранска

    (0)