2 490 000 Р 30 390 $ или 26 030

Информация о квартире

27 м2
Площадь
14 м2
Жилая
5 м2
Кухня
1
Комната
2
Этаж
5
Этажность

Дополнительная информация

Тип дома
кирпичный
Развернуть
Агент
Евгений Михайлович Килин (Этажи Саранск)
+7 (917) 990-40-75
Начать чат с агентом

1-к кв. Мордовия, Саранск ул. Александра Невского, 101А (27.3 м)

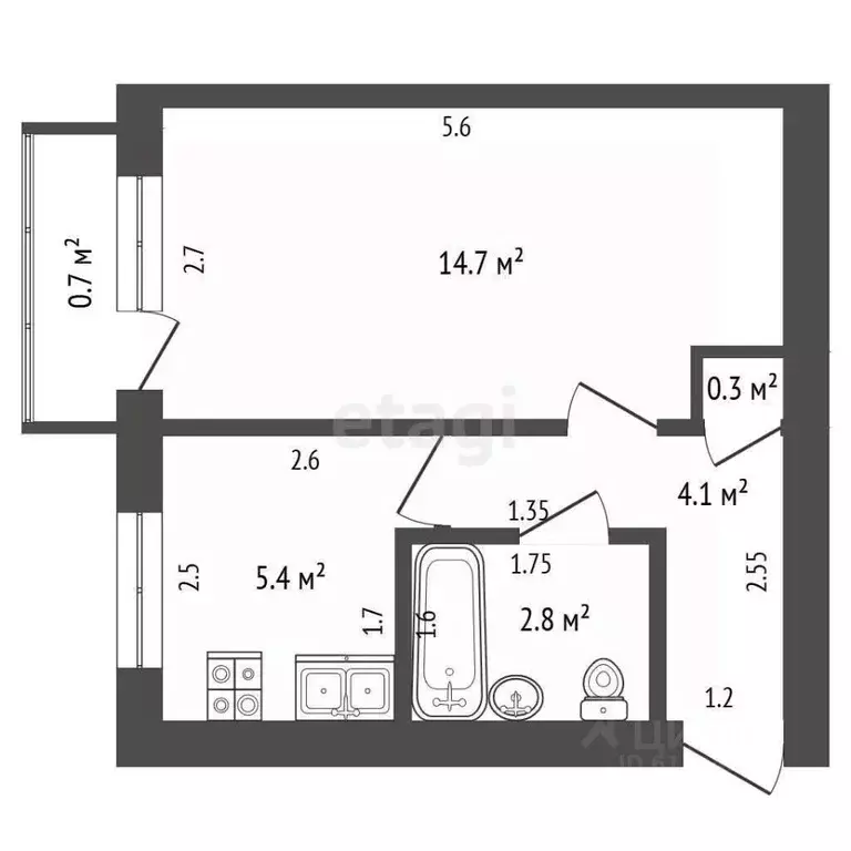
Продается однокомнатная квартира на юго-западе. Квартира расположена на 2-ом этаже 5-ти этажного кирпичного дома. 4 квартиры на лестничной площадке. Окна на южную сторону. Не угловая. Общая площадь 27,3 кв.м + балкон 1,4 кв.м. Выход на балкон из комнаты. Санузел совмещенный. Установлены пластиковые окна. В комнате натяжной потолок. Полы деревянные. Лоджия застеклена (алюминиевая рама). Стены в санузле окрашены. Трубы водоснабжения — полипропилен. Установлены счетчики на горячую и холодную воду. Квартира требует ремонта. Въезд во двор закрыт шлагбаумом. Летом двор утопает в зелени деревьев. В шаговой доступности: музыкальное училище им. Кирюкова, сквер Подольских курсантов, ТЦ Макс , множество магазинов. Код пользователя: 73146Номер в базе: 9597744

Читать полностью

    Для того, чтобы купить однокомнатную квартиру по адресу: Саранск, Ленинский, ул. Александра Невского, 101А, позвоните по телефону +7 (917) 990-40-75. Торопитесь! Объявление №30089650837 о продаже однокомнатной квартиры опубликовано 27 сентября 2025.

    Позвонить Написать
    2 490 000 Р30 390 $ или 26 030
    Агент
    Евгений Михайлович Килин (Этажи Саранск)
    +7 (917) 990-40-75
    Начать чат с агентом
    Похожие предложения
    1-к кв. Мордовия, Саранск ул. Титова, 142 (29.0 м) - Фото 1
    1-к кв. Мордовия, Саранск ул. Титова, 142 (29.0 м) - Фото 2
    1-комнатная квартира, общая площадь 29м², кухня 6м²

    Продается уютная однокомнатная квартира, расположенная в тихом районе города. Площадью 28,8 кв. м на шестом этаже кирпичного дома, с кухней 5,4 кв. м.Санузел в плитке, счётчики новые.В квартире остается кухонный гарнитур, плита.Пластиковые окна, балкон...
    • 29 м²
    • 1-ком
    • 6/9 эт.
    • кирпичный
    2 450 000 Р
    Агент
    +7 (919) Показать номер
    Посмотреть контакты
    1-к кв. Мордовия, Саранск ул. Титова, 142 (28.8 м) - Фото 1
    1-к кв. Мордовия, Саранск ул. Титова, 142 (28.8 м) - Фото 2
    1-комнатная квартира, общая площадь 28м², жилая 16м², кухня 5м²

    Продается уютная однокомнатная квартира, расположенная в тихом районе города. Площадью 28.8 кв.м на первом этаже кирпичного дома.Сан.узел в плитке, счётчики новые.В квартире остается кухонный гарнитур, плита, холодильник и шкаф в комнате.Место отлично...
    • 28 м²
    • 1-ком
    • 1/9 эт.
    • кирпичный
    2 450 000 Р
    Агент
    +7 (919) Показать номер
    Посмотреть контакты
    1-к кв. Мордовия, Саранск просп. 60 лет Октября, 119 (29.9 м) - Фото 1
    1-к кв. Мордовия, Саранск просп. 60 лет Октября, 119 (29.9 м) - Фото 2
    1-комнатная квартира, общая площадь 29м², жилая 18м², кухня 5м²

    В продажу поступила 1-комнатная квартира на пятом этаже пятиэтажного панельного дома хрущевского типа на Светотехстрое Общая площадь — 29,9 м. Планировка функциональна: изолированная кухня площадью 5,6 м и комната, разделенная гипсокартонной перегородкой...
    • 29 м²
    • 1-ком
    • 5/5 эт.
    • панельный
    2 600 000 Р
    Агент
    +7 (901) Показать номер
    Посмотреть контакты
    1-к кв. Мордовия, Саранск ул. Воинова, 2к13 (32.1 м) - Фото 1
    1-к кв. Мордовия, Саранск ул. Воинова, 2к13 (32.1 м) - Фото 2
    1-комнатная квартира, общая площадь 32м², жилая 18м², кухня 5м²

    Продается уютная однокомнатная квартира в Саранске на улице Воинова. Расположена на 6 этаже 9-этажного кирпичного дома 1990 года постройки. Общая площадь составляет 31,2 кв. м, из которых 18,1 кв. м — жилая площадь, а кухня занимает 5 кв. м. Высота потолков...
    • 32 м²
    • 1-ком
    • 6/9 эт.
    2 500 000 Р
    Агент
    +7 (987) Показать номер
    Посмотреть контакты
    1-к кв. Мордовия, Саранск ул. Воинова, 2к1 (30.4 м) - Фото 1
    1-к кв. Мордовия, Саранск ул. Воинова, 2к1 (30.4 м) - Фото 2
    1-комнатная квартира, общая площадь 30м², кухня 5м²

    Продается 1-комнатная квартира на Светотехстрое в кирпичном доме, малосемейного типа Площадь: 30,4 кв.м. Состояние: жилое. На полу линолеум, пластиковые окна, трубы заменены на полипропилен, установлены счетчики воды. Квартира светлая и уютная, с отличным...
    • 30 м²
    • 1-ком
    • 8/9 эт.
    • кирпичный
    2 490 000 Р
    Агент
    +7 (987) Показать номер
    Посмотреть контакты

    Не нашли подходящего объявления?

    Оставьте заявку, и наши риэлторы подберут квартиру в районе Саранска

    (0)