4 200 000 Р 50 600 $ или 43 370

Информация о квартире

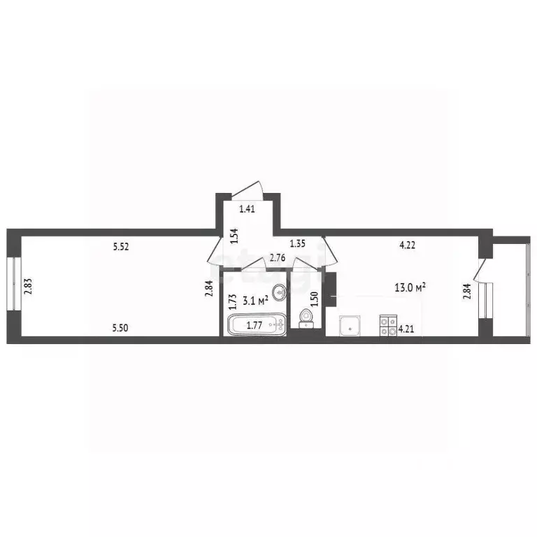
35 м2
Площадь
13 м2
Кухня
1
Комната
6
Этаж
9
Этажность

Дополнительная информация

Тип дома
панельный
Развернуть
Агент
Олег Николаевич Курников (Этажи Саранск)
+7 (987) 990-41-79
Начать чат с агентом

1-к кв. Мордовия, Саранск ул. Фурманова, 32 (35.7 м)

Продаётся уютная 1-комнатная квартира площадью 35,7 м, расположенная на 6 этаже 9-этажного панельного дома 2020 года постройки. Это отличное решение для тех, кто ценит комфорт и современные условия жизни.Косметический ремонт: пластиковые стеклопакеты обеспечивают тепло и тишину, на полу — практичный линолеум, потолки натяжные создают современный и аккуратный вид. Всё для вашего удобства и эстетики.Кухня площадью 13 м с выходом на застеклённый балкон позволяет наслаждаться свежим воздухом и естественным светом. В кухне установлен новый кухонный гарнитур, который остаётся будущим владельцам всё готово к использованию.Санузел раздельный, требует ремонта, что даёт возможность реализовать свои идеи по обновлению и создать именно тот дизайн, который понравится.Инфраструктура и удобство:Закрытый паркинг обеспечивает безопасность вашего автомобиля. Детская площадка во дворе создаёт приятную атмосферу для прогулок и игр с детьми.Рядом расположены все необходимые объекты: школа 8, детский сад 59, школа искусств, баня 11. Остановка общественного транспорта находится всего в 500 метрах — лёгкий доступ в любой район города.Дополнительная информация:Один взрослый собственник, все документы готовы к сделке.Идеальный вариант для тех, кто ищет комфортное жильё в развитом районе с развитой инфраструктурой.Не упустите возможность стать владельцем этой замечательной квартиры Остались вопросы или хотите записаться на просмотр? Звоните прямо сейчас Код пользователя: 135734Номер в базе: 9591051

Читать полностью

    Для того, чтобы купить однокомнатную квартиру по адресу: Саранск, Ленинский, ул. Фурманова, 32, позвоните по телефону +7 (987) 990-41-79. Торопитесь! Объявление №30090607348 о продаже однокомнатной квартиры опубликовано Вчера.

    Позвонить Написать
    4 200 000 Р50 600 $ или 43 370
    Агент
    Олег Николаевич Курников (Этажи Саранск)
    +7 (987) 990-41-79
    Начать чат с агентом
    Похожие предложения
    1-к кв. Мордовия, Саранск ул. Фурманова, 55 (39.4 м) - Фото 1
    1-к кв. Мордовия, Саранск ул. Фурманова, 55 (39.4 м) - Фото 2
    1-комнатная квартира, общая площадь 39м², кухня 12м²

    Продается однокомнатная квартира индивидуальной планировки в районе Юго-Запада. В квартире частичный косметический ремонт. Площадь квартиры 39,4 кв. м., площадь кухни — 12 кв. м., комната 15,7 с выходом на балкон. В комнате сделан косметический ремонт,...
    • 39 м²
    • 1-ком
    • 8/11 эт.
    • панельный
    4 100 000 Р
    Агент
    +7 (919) Показать номер
    Посмотреть контакты
    2-к кв. Мордовия, Саранск ул. Полежаева, 62А (44.4 м) - Фото 1
    2-к кв. Мордовия, Саранск ул. Полежаева, 62А (44.4 м) - Фото 2
    2-комнатная квартира, общая площадь 44м², кухня 5м²

    Уважаемые покупатели, в продаже двухкомнатная квартира 44,4 кв. м в центре города на среднем этаже кирпичного дома. Квартира не угловая и очень теплая. В квартире сделан косметический ремонт: установлены пластиковые окна, натяжные потолки, линолеум по...
    • 44 м²
    • 2-ком
    • 3/5 эт.
    • кирпичный
    4 100 000 Р
    Агент
    +7 (919) Показать номер
    Посмотреть контакты
    3-к кв. Мордовия, Саранск ул. Полежаева, 120 (68.4 м) - Фото 1
    3-к кв. Мордовия, Саранск ул. Полежаева, 120 (68.4 м) - Фото 2
    3-комнатная квартира, общая площадь 68м², жилая 45м², кухня 9м²

    Продается 3-комнатная квартира, расположенная на 2-ом этаже кирпичного дома 1974 года постройки. 5 квартир на лестничной площадке. Квартира не угловая. Общая площадь без учета балкона — 68,4 кв. м. Просторная кухня 9,1 кв. м. Две изолированные спальни:...
    • 68 м²
    • 3-ком
    • 2/9 эт.
    • кирпичный
    4 300 000 Р
    Агент
    +7 (917) Показать номер
    Посмотреть контакты
    2-к кв. Мордовия, Саранск ул. Комарова, 1 (42.3 м) - Фото 1
    2-к кв. Мордовия, Саранск ул. Комарова, 1 (42.3 м) - Фото 2
    2-комнатная квартира, общая площадь 42м², кухня 5м²

    Продается просторная 2-комнатная квартира площадью 42,3 м в кирпичном 5-этажном доме на 2 этаже. Квартира отличается продуманной планировкой: кухня 5,8 м, комнаты 18,2 м и 9,9 м. Балкон застеклен. Совмещенный санузел полностью обновлен — установлена современная...
    • 42 м²
    • 2-ком
    • 2/5 эт.
    • кирпичный
    4 100 000 Р
    Агент
    +7 (987) Показать номер
    Посмотреть контакты
    2-к кв. Мордовия, Саранск просп. 50 лет Октября, 4 (42.1 м) - Фото 1
    2-к кв. Мордовия, Саранск просп. 50 лет Октября, 4 (42.1 м) - Фото 2
    2-комнатная квартира, общая площадь 42м², жилая 28м², кухня 6м²

    Продается 2-комнатная квартира на проспекте 50 лет Октября, д. 4, возле Чайки, не угловая.В квартире сделан косметический ремонт: натяжные потолки, пластиковые окна, на полу качественный ламинат, санузел раздельный в кафеле, вся мебель остается, кроме...
    • 42 м²
    • 2-ком
    • 5/5 эт.
    • кирпичный
    4 200 000 Р
    Агент
    +7 (987) Показать номер
    Посмотреть контакты

    Не нашли подходящего объявления?

    Оставьте заявку, и наши риэлторы подберут квартиру в районе Саранска

    (0)