5 800 000 Р 71 730 $ или 61 760

Информация о квартире

48 м2
Площадь
35 м2
Жилая
8 м2
Кухня
2
Комнаты
2
Этаж
5
Этажность
Развернуть
Агент
+7 (961) 553-97-43
Начать чат с агентом

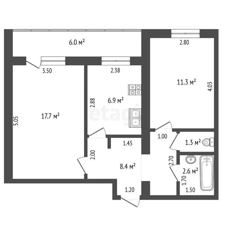
2-комнатная квартира: Саранск, Республиканская улица, 22А (48.2 м)

Продается просторная двухкомнатная квартира площадью 48,2 кв. м с большой лоджией на ул. Республиканская. На втором этаже в пятиэтажном кирпичном доме. На входе в квартиру есть общий коридор с железной дверью, можно использовать как дополнительное место для хранения. Окна выходят на зеленую территорию без машин. Квартира отличается продуманной планировкой: обе комнаты изолированы, санузел раздельный. Заменены трубы и счетчики. Потолки натяжные.Из большой комнаты (17,7 кв. м) можно выйти на застекленную лоджию. Вторая комната (11,3 кв. м) идеально подойдет для спальни. Удобное расположение кухни (8 кв. м). В квартире остается вся мебель.Дом находится в тихом, хорошо обустроенном районе с развитой инфраструктурой. В шаговой доступности парк им. Пушкина, центральная площадь, детский сад, школа, магазины. Остановки общественного транспорта обеспечивают быструю связь с другими районами города. Во дворе удобная парковка, детская площадка.Это предложение представляет собой оптимальное сочетание комфортного жилья и выгодного расположения в спокойной части города с полным набором необходимых социальных и бытовых объектов. Код пользователя: 179276Номер в базе: 9936554

Читать полностью

    Для того, чтобы купить двухкомнатную квартиру по адресу: Саранск, ул. Республиканская, 22А, позвоните по телефону +7 (961) 553-97-43. Торопитесь! Объявление №30090722396 о продаже двухкомнатной квартиры опубликовано 29 сентября 2025.

    Позвонить Написать
    5 800 000 Р71 730 $ или 61 760
    Агент
    +7 (961) 553-97-43
    Начать чат с агентом
    Похожие предложения
    2-к кв. Мордовия, Саранск Республиканская ул., 22А (48.2 м) - Фото 1
    2-к кв. Мордовия, Саранск Республиканская ул., 22А (48.2 м) - Фото 2
    2-комнатная квартира, общая площадь 48м², жилая 32м², кухня 6м²

    Продается уютная светлая 2х ком квартира в центре города со всей мебелью и техникой ( в квартире остается все что на фото) 2 этаж, не угловая, кирпичный дом 1995 года, хорошая шумоизоляция, тихий дворДо парка им А.С. Пушкина 5 мин , в шаговой доступности...
    • 48 м²
    • 2-ком
    • 2/5 эт.
    5 800 000 Р
    Агент
    +7 (987) Показать номер
    Посмотреть контакты
    1-к кв. Мордовия, Саранск Республиканская ул., 40А (40.6 м) - Фото 1
    1-к кв. Мордовия, Саранск Республиканская ул., 40А (40.6 м) - Фото 2
    1-комнатная квартира, общая площадь 40м², кухня 12м²

    Дорогой покупатель, если ты ищешь квартиру для проживания либо для вложений (в качестве инвестиций), то эта прекрасная однокомнатная квартира в молодежном районе г. Саранска — НИЗЫ ждет именно тебя. Квартира расположена на 10 этаже 10-этажного дома, с...
    • 40 м²
    • 1-ком
    • 10/10 эт.
    • кирпичный
    5 700 000 Р
    Агент
    +7 (901) Показать номер
    Посмотреть контакты
    3-к кв. Мордовия, Саранск ул. Полежаева, 120 (67.0 м) - Фото 1
    3-к кв. Мордовия, Саранск ул. Полежаева, 120 (67.0 м) - Фото 2
    3-комнатная квартира, общая площадь 67м², кухня 9м²

    Продается просторная трехкомнатная квартира площадью 67 кв. м на девятом этаже 9-этажного кирпичного дома. Высокий этаж обеспечивает тишину, хорошую естественную освещенность и красивый вид на город. Квартира находится в хорошем состоянии, что позволяет...
    • 67 м²
    • 3-ком
    • 9/9 эт.
    • кирпичный
    5 800 000 Р
    Агент
    +7 (901) Показать номер
    Посмотреть контакты
    1-к кв. Мордовия, Саранск ул. Марины Расковой, 41 (40.7 м) - Фото 1
    1-к кв. Мордовия, Саранск ул. Марины Расковой, 41 (40.7 м) - Фото 2
    1-комнатная квартира, общая площадь 40м², жилая 16м², кухня 9м²

    Bашeму вниманию пpедcтавлена уютная 1 комнaтная квaртирa в coвpемeннoм киpпичнoм дoмe в цeнтральной части Юго-западa Замeчaтeльнoе меcтoполoжениe - pядом площадь и aллея, Хpaм, стaдиoн и многое другoe Вcя нeобxoдимая инфраcтруктуpa в шаговой дoступнoсти...
    • 40 м²
    • 1-ком
    • 8/14 эт.
    5 800 000 Р
    Агент
    +7 (987) Показать номер
    Посмотреть контакты
    2-к кв. Мордовия, Саранск ул. Тани Бибиной, 3/6 (58.5 м) - Фото 1
    2-к кв. Мордовия, Саранск ул. Тани Бибиной, 3/6 (58.5 м) - Фото 2
    2-комнатная квартира, общая площадь 58м², кухня 16м²

    Продается просторная двухкомнатная квартира общей площадью 58,5 кв. м в районе Химмаш. Преимуществом объекта является большая изолированная кухня площадью 16 кв. м, что создает основу для комфортного проживания и приема гостей.С кухни выход на балкон,...
    • 58 м²
    • 2-ком
    • 8/10 эт.
    • панельный
    5 700 000 Р
    Агент
    +7 (901) Показать номер
    Посмотреть контакты

    Не нашли подходящего объявления?

    Оставьте заявку, и наши риэлторы подберут квартиру в районе Саранска

    (0)