3 350 000 Р 41 420 $ или 35 870

Информация о квартире

47 м2
Площадь
31 м2
Жилая
6 м2
Кухня
2
Комнаты
1
Этаж
5
Этажность

Дополнительная информация

Тип дома
панельный
Развернуть
Агент
+7 (901) 637-60-82
Начать чат с агентом

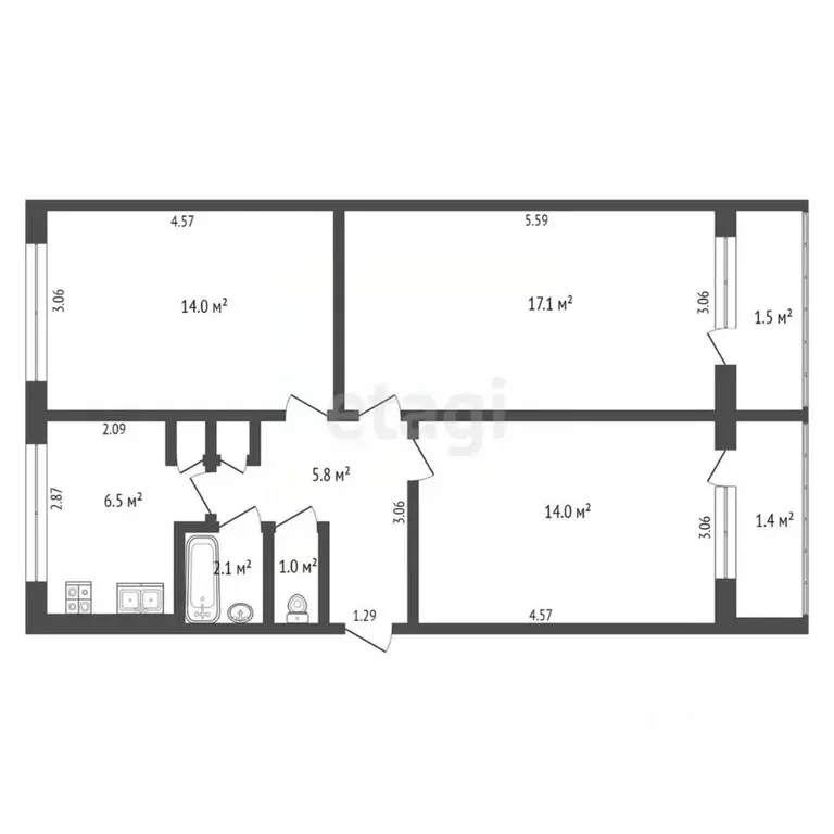
2-к кв. Мордовия, Саранск ул. Сущинского, 17 (47.2 м)

Продается двухкомнатная квартира, расположенная на 1-ом этаже 5-ти этажного панельного дома Литовского типа. Этаж высокий. 3 квартиры на лестничной площадке. Отопление центральное. Окна квартиры на обе стороны дома (северо-восток и юго-запад). Общая площадь — 47,2 кв. м. Комнаты изолированные 14 и 17,1 кв. м. Кухня 6,5 кв. м. Санузел раздельный. Есть лоджия с выходом из комнаты. Под лоджией организован погреб.Квартира требует ремонта. Окно в одной комнате пластиковое, остальные деревянные. Лоджия застеклена (деревянная рама). Квартира освобождена от мебели и готова к ремонту.Около дома продуктовый магазин и пункты выдачи Ozon и WB. В шаговой доступности: школа 32 и детский сад, художественная школа, Пятерочка , пекарни, аптеки, Сбербанк, остановки общественного транспорта (Торговый центр). Код пользователя: 73146Номер в базе:

Читать полностью

    Для того, чтобы купить двухкомнатную квартиру по адресу: Саранск, Октябрьский, ул. Сущинского, 17, позвоните по телефону +7 (901) 637-60-82. Торопитесь! Объявление №30091503665 о продаже двухкомнатной квартиры опубликовано 2 дня назад.

    Позвонить Написать
    3 350 000 Р41 420 $ или 35 870
    Агент
    +7 (901) 637-60-82
    Начать чат с агентом
    Похожие предложения
    1-к кв. Мордовия, Саранск ул. Тани Бибиной, 7/2 (37.1 м) - Фото 1
    1-к кв. Мордовия, Саранск ул. Тани Бибиной, 7/2 (37.1 м) - Фото 2
    1-комнатная квартира, общая площадь 37м², жилая 18м², кухня 10м²

    Продается уютная однокомнатная квартира в современном монолитном доме 2013 года постройки. Расположена на первом этаже 10-этажного здания по адресу: Саранск, улица Тани Бибиной, 7/2. Общая площадь квартиры составляет 37,1 кв. м, из которых 18 кв. м —...
    • 37 м²
    • 1-ком
    • 1/10 эт.
    • монолит
    3 400 000 Р
    Агент
    +7 (987) Показать номер
    Посмотреть контакты
    3-к кв. Мордовия, Саранск ул. Чкалова, 1 (61.2 м) - Фото 1
    3-к кв. Мордовия, Саранск ул. Чкалова, 1 (61.2 м) - Фото 2
    3-комнатная квартира, общая площадь 61м², кухня 6м²

    Уникальное предложение Продается просторная трехкомнатная квартира под ремонт на 5 этаже уютного панельного дома, построенного в 1977 году, в самом сердце района ТЦ Макс . Общая площадь квартиры составляет 61,2 кв.м, а кухня — 6,5 кв.м, что дает вам...
    • 61 м²
    • 3-ком
    • 5/5 эт.
    • панельный
    3 500 000 Р
    Агент
    +7 (901) Показать номер
    Посмотреть контакты
    1-к кв. Мордовия, Саранск Гожувская ул., 44 (33.5 м) - Фото 1
    1-к кв. Мордовия, Саранск Гожувская ул., 44 (33.5 м) - Фото 2
    1-комнатная квартира, общая площадь 33м², кухня 6м²

    Покупай сейчас - плати потом На данный объект доступна рассрочка на выгодных условияхПродается уютная однокомнатная квартира в панельном доме в районе Химмаша. Квартира общей площадью 33,5 кв. м, где кухня 6,5 кв. м, а спальня 14 кв. м.Ремонт в квартире...
    • 33 м²
    • 1-ком
    • 8/9 эт.
    • панельный
    3 400 000 Р
    Агент
    +7 (901) Показать номер
    Посмотреть контакты
    1-к кв. Мордовия, Саранск ул. Косарева, 21А (34.1 м) - Фото 1
    1-к кв. Мордовия, Саранск ул. Косарева, 21А (34.1 м) - Фото 2
    1-комнатная квартира, общая площадь 34м², кухня 6м²

    В продаже 1-комнатная квартира на 9-ом этаже 10-ти этажного панельного дома на Химмаше по адресу: ул. Косарева, д. 21А. Общая площадь 34.1 кв. м., кухня 6.5 кв. м., жилая 14 кв. м. Окна выходят на ЖК Акварель . Выход на лоджию из комнаты. Санузел раздельный....
    • 34 м²
    • 1-ком
    • 9/10 эт.
    • панельный
    3 300 000 Р
    Агент
    +7 (901) Показать номер
    Посмотреть контакты
    2-к кв. Мордовия, Саранск ул. Лихачева, 15 (42.9 м) - Фото 1
    2-к кв. Мордовия, Саранск ул. Лихачева, 15 (42.9 м) - Фото 2
    2-комнатная квартира, общая площадь 42м², кухня 5м²

    Продается 2-х комнатная квартира расположенная на 3-м этаже 5-ти этажного панельного дома на Химмаше. Квартира угловая. Общая площадь без учета балкона составляет 42,9 кв.м. Комнаты изолированные: 17,1 и 10,9 кв.м. Кухня 5,8 кв.м. Санузел совмещенный....
    • 42 м²
    • 2-ком
    • 3/5 эт.
    • панельный
    3 300 000 Р
    Агент
    +7 (901) Показать номер
    Посмотреть контакты

    Не нашли подходящего объявления?

    Оставьте заявку, и наши риэлторы подберут квартиру в районе Саранска

    (0)