5 500 000 Р 67 590 $ или 58 660

Информация о квартире

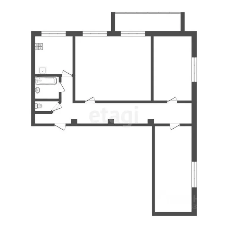
45 м2
Площадь
8 м2
Кухня
1
Комната
1
Этаж
5
Этажность

Дополнительная информация

Тип дома
кирпичный
Развернуть
Агент
+7 (996) 849-87-50
Начать чат с агентом

1-к кв. Мордовия, Саранск Пионерская ул., 8 (45.0 м)

Продается двухкомнатная квартира общей площадью 45 кв. м на 1 этаже в пятиэтажном кирпичном доме.Квартира с качественным ремонтом. Комнаты квартиры выходят на обе стороны ( распашонка ), что позволяет проветривать эффективнее квартиру в жару летом и чувствовать себя комфортно. Квартира, несмотря на то что угловая, очень теплая. Дом расположен в месте с развитой инфраструктурой: рядом несколько супермаркетов, аптеки, школа, детский садик, остановки общественного транспорта в 5 минутах. Также в дополнение к квартире идет подвальное помещение с погребом.При продаже новым жильцам остается машинка-автомат, холодильник. Код пользователя: 132133Номер в базе:

Читать полностью

    Для того, чтобы купить однокомнатную квартиру по адресу: Саранск, Ленинский, ул. Пионерская, 8, позвоните по телефону +7 (996) 849-87-50. Торопитесь! Объявление №30091564049 о продаже однокомнатной квартиры опубликовано 03 ноября 2025.

    Позвонить Написать
    5 500 000 Р67 590 $ или 58 660
    Агент
    +7 (996) 849-87-50
    Начать чат с агентом
    Похожие предложения
    3-к кв. Мордовия, Саранск просп. 50 лет Октября, 24 (62.7 м) - Фото 1
    3-к кв. Мордовия, Саранск просп. 50 лет Октября, 24 (62.7 м) - Фото 2
    3-комнатная квартира, общая площадь 62м², жилая 51м², кухня 5м²

    Продается трехкомнатная квартира на первом этаже дома, расположенного по адресу - пр.50 лет Октября д.24.Квартира занимает весь торец здания, что делает её отличным вариантом для размещения магазина или другого коммерческого объекта. Все стены не несущие...
    • 62 м²
    • 3-ком
    • 1/5 эт.
    • кирпичный
    5 400 000 Р
    Агент
    +7 (987) Показать номер
    Посмотреть контакты
    2-к кв. Мордовия, Саранск ул. Васенко, 1 (63.1 м) - Фото 1
    2-к кв. Мордовия, Саранск ул. Васенко, 1 (63.1 м) - Фото 2
    2-комнатная квартира, общая площадь 63м², кухня 10м²

    Продается двухкомнатная квартира общей площадью 63,1 кв. м в центральном районе города. Объект расположен в капитальном кирпичном доме 1940 года постройки с железобетонными перекрытиями. В квартире выполнен косметический ремонт: стены оформлены декоративной...
    • 63 м²
    • 2-ком
    • 2/4 эт.
    • кирпичный
    5 500 000 Р
    Агент
    +7 (996) Показать номер
    Посмотреть контакты
    2-к кв. Мордовия, Саранск ул. Фурманова, 63 (57.9 м) - Фото 1
    2-к кв. Мордовия, Саранск ул. Фурманова, 63 (57.9 м) - Фото 2
    2-комнатная квартира, общая площадь 57м², жилая 30м², кухня 15м²

    Продается двухкомнатная квартира, расположенная на 1-ом этаже 10-ти этажного панельного дома 2015 года постройки. Этаж высокий. Отопление центральное. Квартира не угловая. 4 квартиры на лестничной площадке. Окна выходят на обе стороны дома (на запад и...
    • 57 м²
    • 2-ком
    • 1/10 эт.
    • панельный
    5 550 000 Р
    Агент
    +7 (901) Показать номер
    Посмотреть контакты
    2-к кв. Мордовия, Саранск ул. Розы Люксембург, 9 (63.6 м) - Фото 1
    2-к кв. Мордовия, Саранск ул. Розы Люксембург, 9 (63.6 м) - Фото 2
    2-комнатная квартира, общая площадь 63м², кухня 9м²

    Двухкомнатная квартира площадью 63,6 м расположена на пятом этаже кирпичного дома с лифтом. Просторная кухня 9 м позволяет удобно разместить обеденную зону и современную технику. Санузел совмещённый, балкон отделан деревянными панелями и готов к использованию....
    • 63 м²
    • 2-ком
    • 5/7 эт.
    • кирпичный
    5 580 000 Р
    Агент
    +7 (901) Показать номер
    Посмотреть контакты
    3-к кв. Мордовия, Саранск ул. Марины Расковой, 20 (58.0 м) - Фото 1
    3-к кв. Мордовия, Саранск ул. Марины Расковой, 20 (58.0 м) - Фото 2
    3-комнатная квартира, общая площадь 58м², кухня 6м²

    Продается просторная трехкомнатная квартира общей площадью 58 кв. м., расположенная на третьем этаже пятиэтажного кирпичного дома. Объект находится в хорошем состоянии и полностью готов к заселению. В квартире выполнены все необходимые работы: установлены...
    • 58 м²
    • 3-ком
    • 3/5 эт.
    • кирпичный
    5 400 000 Р
    Агент
    +7 (901) Показать номер
    Посмотреть контакты

    Не нашли подходящего объявления?

    Оставьте заявку, и наши риэлторы подберут квартиру в районе Саранска

    (0)