36 244 Р 463 $ или 399

Состояние и оснащение

Количество этажей
2
Развернуть
Агент
+7 (919) 787-52-89
Начать чат с агентом

Помещение свободного назначения в Мордовия, Саранск Псковская ул., ...

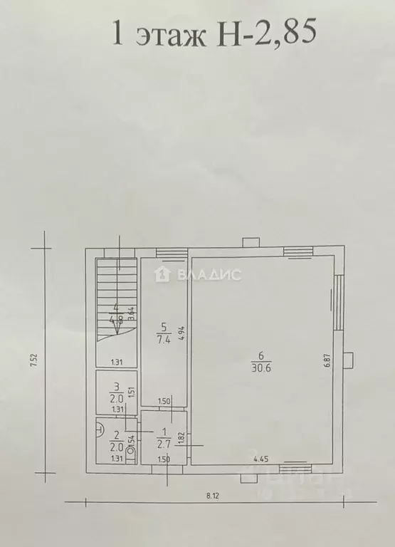
Данные получены с сайта ГИС Торги.Офисное помещение 302, расположенное на 3 этаже здания, (год постройки 2024, стены и перегородки выполнены из гипсокартона, конструкций из алюминия и стекла, отопление индивидуальное, водоснабжение центральное, электроснабжение скрытая проводка, канализация центральная, наличие телефона) по адресу г. Саранск, ул. Псковская, 2 А, строение 1, общая площадь 53,3 кв. м.

Читать полностью
    Позвонить Написать
    36 244 Р463 $ или 399
    Агент
    +7 (919) 787-52-89
    Начать чат с агентом
    Похожие предложения
    Помещение свободного назначения в Архангельская область, Архангельск ... - Фото 1
    Помещение свободного назначения в Архангельская область, Архангельск ... - Фото 2
    Отличный офис на Поморской. Приемлемая конкурентная цена. Все коммунальные услуги включены в цену.
    • 2/2 эт.
    36 000 Р
    Агент
    +7 (911) Показать номер
    Посмотреть контакты
    Помещение свободного назначения в Владимирская область, Собинка ... - Фото 1
    Помещение свободного назначения в Владимирская область, Собинка ... - Фото 2
    Код объекта: 1782392.Сдается торгово-офисное помещение в аренду 50 кв.м с собственным отдельным входом на первом этаже( вход в центре здания). Центральное отопление , горячая вода от котельной .Стоимость аренды указана за 50 кВ. м.Можно арендовать как...
    • 1/2 эт.
    35 000 Р
    Агент
    +7 (915) Показать номер
    Посмотреть контакты
    Помещение свободного назначения в Воронежская область, Воронеж ... - Фото 1
    Помещение свободного назначения в Воронежская область, Воронеж ... - Фото 2
    Арт.Сдаётся помeщeние свободного назнaчения , пeрвый этаж жилого многоэтажного домa. рядом 4 огромных новостройки, хороший поток клиентов. Oтдeльный вxод с улицы, доcтуп 24/7.Гарантированный тpафик, удобный подъезд, Готовое современное помещение для Вашего...
    • 1/17 эт.
    35 000 Р
    Агент
    +7 (933) Показать номер
    Посмотреть контакты
    Помещение свободного назначения в Калининградская область, Светлый ... - Фото 1
    Помещение свободного назначения в Калининградская область, Светлый ... - Фото 2
    Код объекта: 1946719.Эксклюзивное предложение в Светлом, АРЕНДА всего первого этажа отдельностоящего здания общей площадью 101 кв.м. для вашего бизнеса Ориентиры: ул. Коммунистическая, остановка ГРЭС-2_________________________________Помещение свободного...
    • 1/2 эт.
    37 000 Р
    Агент
    +7 (981) Показать номер
    Посмотреть контакты
    Помещение свободного назначения в Карелия, Петрозаводск Мичуринская ... - Фото 1
    Помещение свободного назначения в Карелия, Петрозаводск Мичуринская ... - Фото 2
    Код объекта: 1669018.ОписаниеПредлагается в Аренду помещение свободного назначения на ул. Мичуринская 7.Современный пятиэтажный жилой дом. Общая площадь помещения - 57 кв.м.Расположено на первом этаже .- Отдельный вход.- 3 просторных кабинета;- Кладовая...
    • 1/5 эт.
    35 000 Р
    Агент
    +7 (981) Показать номер
    Посмотреть контакты

    Не нашли подходящего объявления?

    Оставьте заявку, и наши риэлторы подберут псн в районе Саранска

    (0)